Projects

Below you’ll find a selection of projects I have worked on. Some are completed and some are still in development.


  • Old Silk Mill, Tring - 4 New Dwellings

    We were the lead consultant on this modern, residential project, dealing with the complex planning conditions imposed on the development.

    Read more

  • Little Yeats, Woodham - Class Q approval to 3 Eco Dwellings

    We undertook the design and detailed drawings for this large barn conversion.

    Read more

  • York House, Bucknell - Contentious Planning For New Garage

    We successfuly gained planning permission for a project that had previously been rejected many times.

    Read more

  • Beanacre, Hook Norton - 2 Story Rear Extension

    A 2 storey extension to the rear of a residential property providing lots of extra space for the family.

    Read more

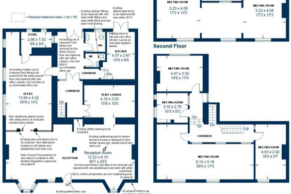
  • The Old Fox Inn, Bicester - Listed Building Office Conversion

    Conversion of historic listed public house into offices from feasibility to completion.

    Read more

  • Coldharbour Lodge, Stadhampton - Grade 2 Listed Building Extension

    The development of an extension to a listed cottage from feasibility to completion.

    Read more